Mobilkøkken
Vi tilbyder komplette løsninger af mobilkøkken til enhver lejlighed.
Som de eneste i Danmark udlejer vi midlertidige, professionelle storkøkkener med stor kapacitet bygget sammen af flere vogne.
Dansk Mobil Køkken er de første i Danmark med professionelle mobile køkkener og er ligeledes de, som kan tilbyde flest muligheder, løsninger og erfaringer herom. Vi tilbyder leje af store og velfungerende mobile køkkener på hjul. Så snart den står på jeres matrikel er den klar til drift. Det er også muligt at bygge det mobile køkken sammen med eksisterende bygning, kantine eller telt.

Mangler du et velfungerende og midlertidigt storkøkken - kontakt os
Mobilkøkken moduler
Et mobilkøkken på hjul lyder måske ikke af meget, men her tager I fejl.
Det er et køkken med stor kapacitet og funktionel indretning man hurtig bliver fortrolig med. Her er ikke gået på kompromis med noget, ej heller med udstyr som spuleslange samt førstehjælpsmateriale.
Vores vogne kan bygges sammen og løse selv de største behov. I kan leje en køkkenvogn, flere forskellige køkkenvogne eller eller et komplet køkkenmiljø med køle-, frost-, lager- og/eller supplerende opvaskevogn, opbygget i en samlet enhed, Dermed bliver det ikke en udfordring at opbevare fødevarer - tør som frys. Samtlige af vores kunder har fået godkendt brugen af vores mobile køkkener af Fødevarestyrelsen.
Vores opvaskevogne er desuden en effektiv problemløser.
Den er indrettet med flere opvaskeområder og har kapacitet til tusindvis af funklende servicedele. Den mobile vaskevogn kan agere komponent i en komplet løsning eller for sig selv.
Komplette løsninger
Vi sørger for levering, opsætning, afhentning og rengøring. Nemmere bliver det bare ikke.
Med vores komplette løsninger er mulighederne uendelige; de mobile vogne kan bygges sammen. Vi tilbyder desuden også løsninger med telt og gulv, hvis dette er et ønske. Teltene kan bygges sammen med de forskellige vogne, hvor gulvet forener arealerne og muliggør direkte adgang. Vi installerer også varerampe således grossist har direkte adgang til serveringslokaler. Af ekstraudstyr har vi en lang række køkkenmaskiner, køkkenudstyr, opvarmningsmuligheder, spildevandstank og -pumpe, fedtudskillere samt belysning.
Et mobilt køkken er enormt anvendelig som industrikøkken til leje i forbindelse med byggeprojekter, ombygning, akutte skader, renovering, arrangementer og events, da her er kapacitet til tusinde menuer. Så hvis I står og mangler et yderst velfungerende og midlertidig køkken til leje til både korte og længere perioder, så har I med sikkerhed fundet det rette sted.
Stik os et kald om jeres behov og ønsker. Vi kan med stor sandsynlighed indfri dem uden problemer. Vi leverer hurtigt i både Danmark, Tyskland, Norge og Sverige.
Vores Mobilkøkken modeller:
Mobil køkken model A
Mobil køkken model A er ideelt som samplingskøkken, til åbent hus, rejsegilde og andre arrangementer.
Størrelsen på vognen, kombineret med professionelle storkøkken maskiner, giver også mulighed for brug til større begivenheder - til erstatning af jeres normale storkøkken.
Vognen indeholder både en opvaskeafdeling og et godt arbejdsområde til madproduktion.
Stor låge på siden af vognen giver mulighed for servering via denne - eller at se kokken i aktion. I modsatte side er dør, der giver mulighed for sammenbygning med andre af vores vogne, f.eks. opvaskevogn, yderligere køl, frys og tørvarelager - eller sammen med en af vore andre mobile køkkenvogne.
Der kan bygges et produktionstelt på vognen, i hele vognens længde, med fast gulv, hvor der kan opsættes borde, vask med koldt/varmt vand og afløb.
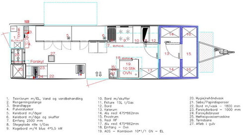
Indretning
Tryk på teksten for brugervejledning
- Køledisk (570 l) med 2 skuffer og 3 låger
 - Electrolux gaskogebord med 4 blus (4x5,5 kw)
 - Electrolux kipsteger (60 l) med bund i Duomat
 - 3 x 40 cm neutralt bord med underhylde
 - Electrolux AOS Kombiovn (10x1/1GN) med rengøringsprogram
 - Arbejdsbord (1,2 m) med håndvask og underhylde
 - Hygiejnevask med indbygget knæsensor for aktivering af vand, sæbedispenser og papirservietter
 - Electrolux hætteopvaskemaskine med automatisk løft og sæbedoseringsanlæg
 - Tørre-/forskyllebord for hætteopvaskemaskine med forskyllebruser
 - Tørrebane (60 cm) med underhylde
 - Alu reol med hylder (tørvarer/grej)
 - Køleskab, 700 l, med 4 hylder
 - Fryseskab, 700 l, med 4 hylder
 
Mobil køkken model C
Mobil køkken model C er ideelt som samplingskøkken, til åbent hus, rejsegilde og andre arrangementer.
Størrelsen på vognen, kombineret med professionelle storkøkken maskiner, giver også mulighed for brug til større begivenheder - til erstatning af jeres normale storkøkken.
Vognen indeholder både kølerum og fryserum, en opvaskeafdeling og et godt arbejdsområde til madproduktion.
Stor låge på siden af vognen giver mulighed for servering via denne - eller at se kokken i aktion. I modsatte side er dør, der giver mulighed for sammenbygning med andre af vores vogne, f.eks. opvaskevogn, yderligere køl, frys og tørvarelager - eller sammen med en af vore andre mobile køkkenvogne.
Der kan bygges et produktionstelt på vognen, i hele vognens længde, 9 m, med fast gulv, hvor der kan opsættes borde, vask med koldt/varmt vand og afløb.
Indretning
Tryk på teksten for brugervejledning
- Køledisk (420 l) med 3 låger
 - Køledisk (420 l) med 4 skuffer og 1 låge
 - Electrolux Stegeplade, 40 cm, med rillet overflade
 - Electrolux gaskogebord med 4 blus (4x5,5 kw)
 - Electrolux Friture, 15 liter (14 kw)
 - 2 x 40 cm neutralt bord med underhylde
 - Electrolux AOS Kombiovn (10x1/1GN) med rengøringsprogram
 - Arbejdsbord (1,8 m) med håndvask og underhylde
 - Hygiejnevask med indbygget knæsensor for aktivering af vand, sæbedispenser og papirservietter
 - Electrolux hætteopvaskemaskine med automatisk løft og sæbedoseringsanlæg
 - Tørre-/forskyllebord for hætteopvaskemaskine med forskyllebruser
 - Tørrebane (60 cm) med underhylde
 - Alu reol med hylder (tørvarer/grej)
 - Kølerum med 2 x alu reoler med hylder
 - Fryserum med 2 x alu reoler med hylder
 - 4 hylder (hver på 1 m) over køledisk og arbejdsbord
 
Mobil køkken model D
Mobil køkken model D er et letvognskøkken med mange muligheder for at sammenbygge køkkenet med opvaskevogn og flere køkkener. Derfor er det også ideelt i sammenhænge, hvor produktionen skal være stor.
I dette køkken er opvaskeafdelingen placeret i enden af vognen, så der er mere gulvplads. Der er stor køle-/fryseskabs kapacitet på hver 670 l. og to ovne, hver med 7 stik og vaskeprogram.
Mobil køkken model D er dejlig lys og indbydende med vinduer i tre døre og nem adgang til og fra vognen. Bagest i vognen er der teknikrum med opmærket el-tavle, varmtvandsbeholder og plads til gasflaske.
Der kan bygges et produktionstelt (9 x 3-6-12 m) med fast gulv, hvor der kan opsættes borde, vask med koldt/varmt vand og afløb.
Indretning
Tryk på teksten for brugervejledning
- Køledisk (570 l) med bagkant og 4 låger
 - Arbejdsbord (1,8 m) med håndvask og underhylde
 - 6 hylder (hver på 1 m) over køledisk og arbejdsbord
 - Hygiejnevask med indbygget knæsensor for aktivering af vand, sæbedispenser og papirservietter
 - Tørre-/forskyllebord for hætteopvaskemaskine med forskyllebruser
 - Electrolux EHT8IG hætteopvaskemaskine med isoleret hætte og sæbedoseringsanlæg
 - Tørrebane (1,6 m) med underhylde
 - Stikvogn til 8 bakker
 - 2 stk. stakket Electrolux AOS Kombiovne (6x1/1GN-B-el.) med rengøringsprogram
 - 80 cm neutralt bord med underhylde
 - Electrolux kipsteger (60 l) med bund i Duomat
 - 40 cm neutralt bord med underhylde
 - Electrolux gaskogebord med 4 blus (4x5,5 kw)
 - 40 cm neutralt bord med underhylde
 
Mobil køkken model E
Mobil køkken model E er et letvognskøkken med mange muligheder for at sammenbygge køkkenet med opvaskevogn og flere køkkener. Derfor er det også ideelt i sammenhænge, hvor produktionen skal være stor.
I dette køkken er opvaskeafdelingen placeret i enden af vognen, så der er mere gulvplads. Der er stor køle-/fryseskabs kapacitet på hver 670 l. og ovn med 10 stik, med vaskeprogram.
Mobil køkken model E er dejlig lys og indbydende med vinduer i tre døre og nem adgang til og fra vognen. Bagest i vognen er der teknikrum med opmærket el-tavle, varmtvandsbeholder og plads til gasflaske.
Der kan bygges et produktionstelt (9 x 3-6-12 m) med fast gulv, hvor der kan opsættes borde, vask med koldt/varmt vand og afløb.
Indretning
Tryk på teksten for en brugervejledning
- Køledisk (570 l) med bagkant og 4 låger
 - Arbejdsbord (1,8 m) med håndvask og underhylde
 - 6 hylder (hver på 1 m) over køledisk og arbejdsbord
 - Hygiejnevask med indbygget knæsensor for aktivering af vand, sæbedispenser og papirservietter
 - Tørre-/forskyllebord for hætteopvaskemaskine med forskyllebruser
 - Electrolux EHT8IG hætteopvaskemaskine med isoleret hætte og sæbedoseringsanlæg
 - Tørrebane (1,6 m) med underhylde
 - Stikvogn til 8 bakker
 - 1 stk. Electrolux AOS ovn (10x1/1GN-B-el.) med rengøringsprogram
 - 80 cm neutralt bord med underhylde
 - Electrolux kipsteger (60 l) med bund i Duomat
 - 40 cm neutralt bord med underhylde
 - Electrolux gaskogebord med 4 blus (4x5,5 kw)
 - 40 cm neutralt bord med underhylde
 
Mobil køkken model F
Mobil køkken model F er et letvognskøkken med mange muligheder for at sammenbygge køkkenet med opvaskevogn og flere køkkener. Derfor er det også ideelt i sammenhænge, hvor produktionen skal være stor.
I dette køkken er opvaskeafdelingen placeret i enden af vognen, så der er mere gulvplads. Der er stor køle-/fryseskabs kapacitet på hver 670 l. og ovn med 10 stik, med vaskeprogram.
Mobil køkken model E er dejlig lys og indbydende med vinduer i tre døre og nem adgang til og fra vognen. Bagest i vognen er der teknikrum med opmærket el-tavle, varmtvandsbeholder og plads til gasflaske.
Der kan bygges et produktionstelt (9 x 3-6-12 m) med fast gulv, hvor der kan opsættes borde, vask med koldt/varmt vand og afløb.
Indretning
Tryk på teksten for en brugervejledning
- Køledisk (570 l) med bagkant og 4 låger
 - Arbejdsbord (1,8 m) med håndvask og underhylde
 - 6 hylder (hver på 1 m) over køledisk og arbejdsbord
 - Hygiejnevask med indbygget knæsensor for aktivering af vand, sæbedispenser og papirservietter
 - Tørre-/forskyllebord for hætteopvaskemaskine med forskyllebruser
 - Electrolux EHT8IG hætteopvaskemaskine med isoleret hætte og sæbedoseringsanlæg
 - Tørrebane (1,6 m) med underhylde
 - Stikvogn til 8 bakker
 - 1 stk. Electrolux AOS ovn (10x1/1GN-B-el.) med rengøringsprogram
 - 80 cm neutralt bord med underhylde
 - Electrolux kipsteger (60 l) med bund i Duomat
 - 40 cm neutralt bord med underhylde
 - Electrolux gaskogebord med 4 blus (4x5,5 kw)
 - 40 cm neutralt bord med underhylde
 







































